Ons eerste koophuis! | Deel 1 : Tóch nog ingeloot voor ons droomappartement

Gepubliceerd op 18 november 2024 om 23:07

Whaa, we zijn gewoon ingeloot voor ons droomappartement! Het was dan wel niet onze eerste keuze, maar dan wel de tweede en die doet ook zeker niet onder aan onze eerste keuze.

 

In dit eerste blog van de blogreeks "Ons eerste koophuis" neem ik je mee in het proces van inschrijven tot oplevering en inrichting. Zó leuk om ook eens een interieurontwerp voor onszelf te maken, gelijk een goed project om jou nog beter te kunnen helpen bij de uitvoering van een interieurontwerp!

Waar ik het in dit blog met je over ga hebben

  • Onze zoektocht naar een woning
  • Inschrijven
  • Het koopproces
  • De plattegronden

Onze zoektocht naar een woning

Eind 2022 besloten we dat we toch wel toe waren aan een volgende stap in onze relatie: het kopen van een eigen huis. Vrij snel nadat we dit hadden uitgesproken naar onze families kwam er een onwijs gaaf nieuw project op ons pad. We zagen namelijk op internet een nieuwbouw project voorbij komen die begin 2023 in de verkoop zou gaan.

Vrij snel nadat we het hadden uitgesproken kwam er iets op ons pad!

Helaas waren de prijzen op dat moment nog niet bekend dus moesten we afwachten totdat de woningen in de verkoop zouden gaan. Kort daarna kwam een groot gedeelte van de woningen in de verkoop, maar helaas waren de prijzen voor de eengezinswoningen ver boven ons budget..

Wel stond er aangegeven dat later dat kwartaal ook nog de zogenoemde "BeBo's" in de verkoop zouden komen. Dit zijn beneden- bovenwoningen, waarbij de begane grond één appartement van ongeveer 57 m2 is en de 1e + 2e verdieping is ook een appartement maar dan ongeveer 71 m2. Dit was voor ons als starters veel beter te betalen!


Inschrijven

Het appartement ligt vlakbij onze ouders, in onze vertrouwde buurt, vlakbij onze familie en vrienden en had alles wat we wilden. We besloten daarom om de gok te wagen en ons in te schrijven op het project.

Dat inschrijven deed ik direct op de eerste dag dat de inschrijvingen open waren, op 8 maart. Daarna was het wachten op de uitslag.. die 3 weken leken echt een eeuwigheid te duren.

Eindelijk was de dag daar, vrijdag 23 maart 2023 zouden we te horen krijgen of we waren ingeloot op één van de appartementen waar we voor ingeschreven hadden. Naarmate de dag vorderde kwam er maar geen telefoontje of mailtje. Tot een uur of 4 's middags...

Daar was dan het verlossende mailtje "Helaas zijn jullie uitgeloot voor het appartement waarvoor jullie hadden ingeschreven, mocht er alsnog een appartement vrij komen wordt deze op volgorde van toewijzing beschikbaar gesteld"

Wat baalde ik van dat mailtje zeg... en dat zo net voor het weekend. Hoewel ik zo baalde zat ik bijna direct weer op Funda te kijken, ik had dit zó graag gewild!

Het weekend vloog voorbij en maandag ging ik weer lekker aan het werk, totdat ik opeens gebeld werd door de makelaar, zou het dan tóch?

Ik zat bijna direct weer op Funda te kijken, maar alsof mijn gebeden gehoord werden werd ik de maandag erop tóch gebeld!

Ik weet nog precies dat de makelaar het gesprek begon met "De woning van uw tweede keus is vrij gekomen en ik was even benieuwd of u hier nog steeds interesse in heeft? "

Tijdens die ene zin was ik al zo enthousiast geworden dat ze het antwoord eigenlijk al wist. Gelijk na het gesprek belde ik Sander op tijdens zijn werk. Iets wat ik normaal gesproken nóóit zou doen, maar wat ik nu gelijk móest vertellen!


Het koopproces

Tijdens dat fantastische telefoontje hebben we gelijk een verkoopgesprek ingepland met de makelaar, het ging nu écht gebeuren!

Het verkoopgesprek en het hypotheekgesprek hadden we op dezelfde dag ingepland, zo konden we direct doorpakken en kijken of we het appartement daadwerkelijk konden kopen. Toch best spannend als je ook nog je eigen bedrijf hebt naast je vaste baan!

Gelukkig kostte het allemaal niet zo veel moeite en tijd en werd alles super snel goedgekeurd, wij hebben gewoon een nieuwbouwhuis gekocht!

En dan begint het wachten.. we hadden zelf wel alles compleet maar er zijn ook nog 90 andere woningen die verkocht moesten worden. Daarnaast moesten ook de definitieve vergunningen nog verleend worden.

Uiteindelijk kwam de goednieuwsbrief al op 3 juli, tijdens de bouwvak werden de voorbereidende grondwerkzaamheden gedaan en na de bouwvak zouden ze ein-de-lijk gaan bouwen!


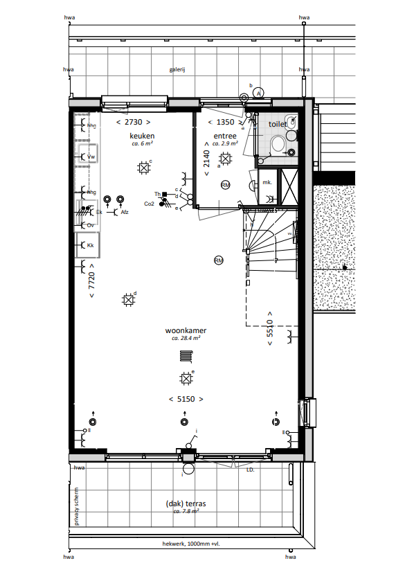
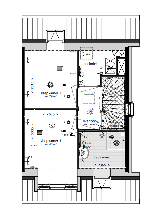
Plattegronden

Na het verkoopgesprek ontvingen wij direct al de plattegronden voor ons huis. Hoewel het nog 1,5 jaar zal gaan duren ging ik gelijk al aan de slag met pinnen op pinterest en kwamen de eerste ideëen al direct op papier.

Natuurlijk kan ik niet wachten om dit allemaal met je te kunnen delen, maar om te beginnen deel ik graag de plattegronden met je:

De komende maanden zullen er nog veel keuzes gemaakt moeten worden, maar dat proces is een feestje om mee te mogen maken!

Je begrijpt, mijn hoofd draait overuren. Ik ben inmiddels al zeker begonnen met het maken van plannen en deel zo nu en dan ook al de plannen op mijn Instagram @metmiran_interieurdesign . Neem je een kijkje?

Reactie plaatsen

Reacties

Er zijn geen reacties geplaatst.